TringaliCase Immobiliare
   Scheda Immobile cod:VC02
 
Offerta: Vendita
 
telefono agenzia: 090675355

 

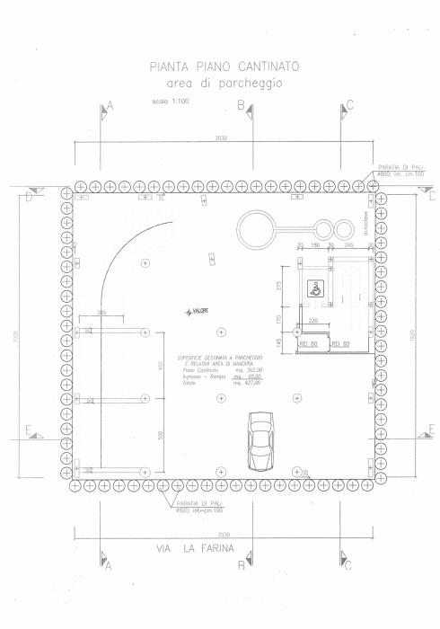
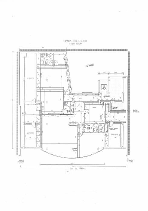
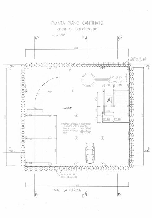
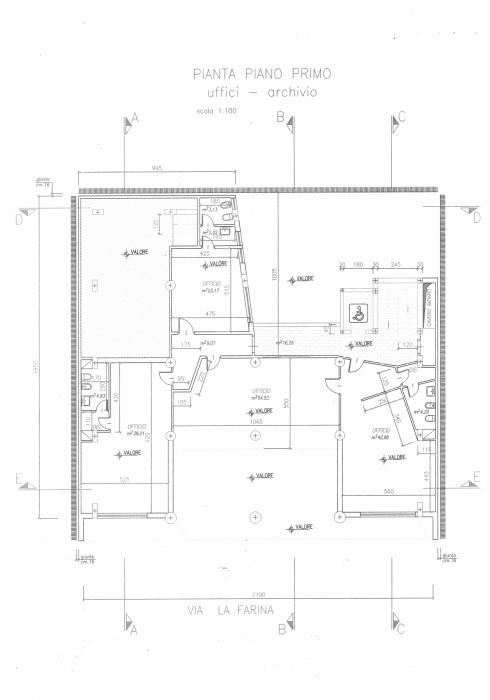
Via La Farina pressi v.le Europa, INTERO EDIFICIO (CAT A/10) destinato ad uffici e disposto su quattro elevazioni fuori terra oltre mansarda, garage e cortile interno, per una metratura totale di circa 1700 mq. Il fabbricato oltre ad essere di recente realizzazione è stato costruito e studiato per garantire una piacevole ospitalità. DOTATO DI: - condizionamento centralizzato caldo freddo - deumidificazione e filtraggio aria - sanificazione ambiente con ricambio e recupero calore - impianto di emergenza automatico con generatore da Kw 6 trifase - gruppo UPS per servizi primari, prese di rete, telefoniche e televisive - sistema di illuminazione di emergenza - ascensore portata 8 persone a norma per disabili - ingresso garage con telecomando - impianto allarme - locale di sorveglianza - zona interna fumatori (cortile) - autoclave con serbatoi di accumulo. Posizione centrale che garantisce ampie zone a parcheggio, nelle immediate vicinanze di fermate di autobus con destinazione Messina-Provincia-Aeroporto-Porto-Stazione Ferroviaria, fermata del tram a circa 150 mt, autostrada a circa 3200 mt, ufficio postale a 50 mt, viale San Martino a mt 450 circa, Municipio a mt 2200, vedi anche INPS, Genio Civile, Camera di Commercio, Agenzia del Territorio, Capitaneria di Porto, ecc.. Immobile locato ad azienda regionale con rendita annuale di € 90.000,00 circa oltre IVA
 
collaborazioni: non condiviso
Città/Provincia: Messina (MESSINA)
Indirizzo: Via La Farina
m.q.: 1700 Vani:
Classe energ. : D
Prezzo: 1,850,000 €
 

TRINGALICASE S.r.l.s. tringalicase@hotmail.it PI 03435370832 tel./Fax 090675355 Viale San Martino 116 98123 Messina