TringaliCase Immobiliare
   Scheda Immobile cod:VN70
 
Offerta: Vendita
 
telefono agenzia: 090675355

 

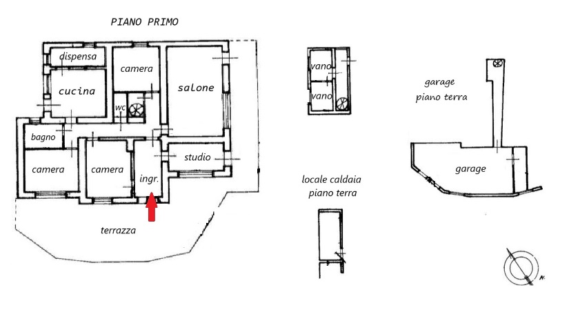
Villaggio Castanea (Contrada Venticinque), località collinare a soli 5 km da Messina, proponiamo villa indipendente immersa nel verde tra pini e percorsi naturali. La proprietà è circondata da terrazzi, giardini su più livelli e terreno circostante di proprietà con piante ornamentali ed alberi da frutto di vario genere. L'immobile, su due livelli, ha una metratura coperta generosa di 270 m² catastali oltre terreno e garage. Al piano terra, di 85 m² circa, troviamo un ampio locale commerciale, precedentemente adibito a trattoria (Tre Pini), composto da una sala, una cucina ed un bagno oltre grande cortile attrezzato a livello. Il Piano primo abitativo, al quale si accede tramite una comoda e caratteristica scala che circonda gli ampi spazi esterni, ha una superficie di circa 190 m² ed è composto da un ingresso, un salone, tre camere da letto, un vano studio, una cucina abitabile, doppi servizi e due grandi terrazze vista mare, una a livello e l’altra sovrastante dove sono presenti due vani. La proprietà è servita da un comodo accesso carrabile dalla strada pubblica che permette di raggiungere gli spazi adibiti a parcheggio ed il grande garage. Grazie alle sue dimensioni ed alle sue caratteristiche estrinseche ed intrinseche, la villa si presta facilmente anche per la realizzazione di un B&B o di un agriturismo. Castanea delle Furie sorge sui colli San Rizzo, a circa 300 metri di altitudine e 5 km dalla città di Messina, dalle sue alture si gode di straordinari panorami sullo Stretto di Messina e da qui si diramano strade che collegano i borghi limitrofi e i paesi della costa tirrenica. Il paesaggio, caratterizzato da dolci avvallamenti che spesso si estendono fino al mare, ha come protagonista proprio quest’ultimo, elemento dominante della visuale.
 
collaborazioni: condiviso
Città/Provincia: Messina (MESSINA)
Indirizzo: SP50 Castanea
m.q.: 350 Vani:8
Classe energ. : G
Prezzo: 188,000 €
 

TRINGALICASE S.r.l.s. tringalicase@hotmail.it PI 03435370832 tel./Fax 090675355 Viale San Martino 116 98123 Messina