TringaliCase Immobiliare
   Scheda Immobile cod:VP22
 
Offerta: Vendita
 
telefono agenzia: 090675355

 

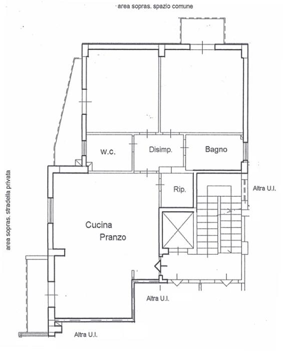
Nel cuore del litorale tirrenico della provincia di Messina, nella via Nazionale del Comune di Rometta Marea, si propone graziosa soluzione abitativa con finiture e dettagli di recente realizzazione, ideale per chi è alla ricerca di un contesto riservato e vicino al mare. Si tratta di un luminoso appartamento la cui unicità non è solamente nel suo stile moderno ma anche nella sua posizione che ha per protagonista la vicinanza alle spiagge. In zona sono presenti tutti i servizi di primaria e secondaria necessità, comprese le fermate dei mezzi di trasporto pubblico e privato, troviamo inoltre attività commerciali e ricreative di ogni genere. La soluzione di 91 mq catastali è composta da ingresso su ampio salone con funzionale cucina a giorno, disimpegno, grande camera da letto matrimoniale, seconda camera, due bagni, ripostiglio e ben tre balconi che illuminano di luce naturale l'intera abitazione. Il complesso abitativo, in discrete condizioni, dispone di area interna ad uso esclusivo dei condomini dove si trovano i posti auto assegnati. Lo stile architettonico dell'appartamento è senza dubbio moderno e ben tenuto. La superficie dell’abitazione risulta essere quindi distribuita in modo efficace e razionale, con zona giorno e zona notte ben distinte e disimpegnate, tutti gli ambienti sono inoltre accoglienti e luminosi. I pavimenti, le finiture, gli efficienti impianti elettrici e idraulici, il riscaldamento autonomo ed il climatizzatore, concorrono a rendere questa soluzione perfetta per la famiglia in cerca di un’abitazione definitiva oppure per coloro che desiderano una casa vicino al mare ma, al contempo, con lo svincolo autostradale a due passi. Opzionale l’acquisto degli arredi presenti.
 
collaborazioni: non condiviso
Città/Provincia: Rometta (MESSINA)
Indirizzo: Via Nazionale
m.q.: 91 Vani:3
Classe energ. : E
Prezzo: 89,000 €
 

TRINGALICASE S.r.l.s. tringalicase@hotmail.it PI 03435370832 tel./Fax 090675355 Viale San Martino 116 98123 Messina