TringaliCase Immobiliare
   Scheda Immobile cod:VP09
 
Offerta: Vendita
 
telefono agenzia: 090675355

 

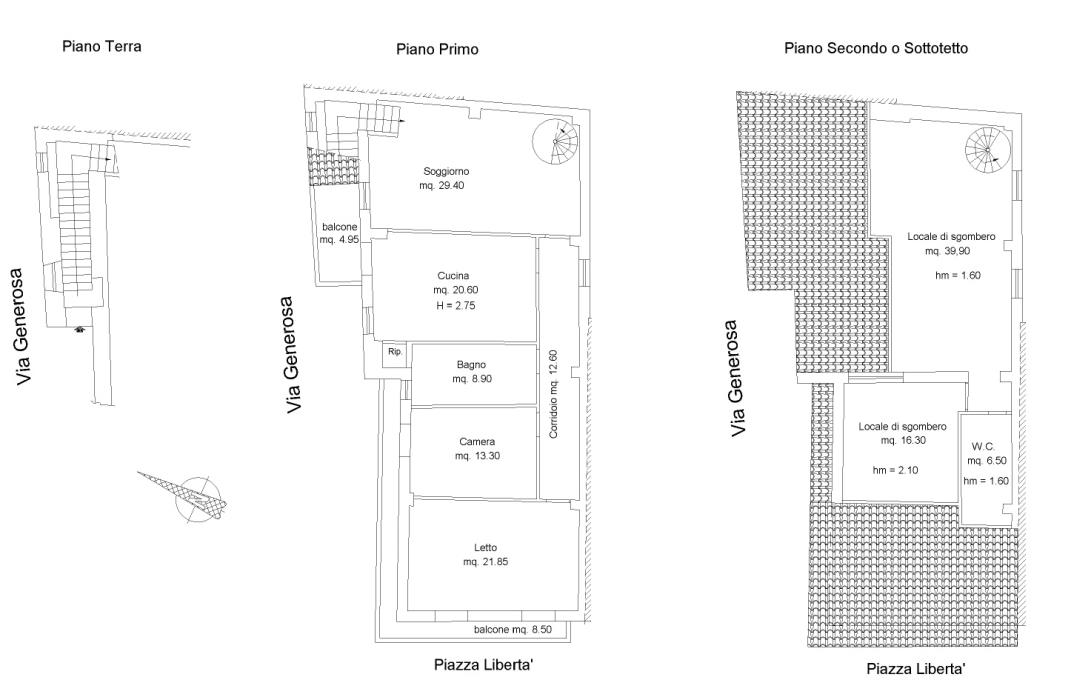
Abitazione indipendente con vista a Saponara, Messina. Immagina di svegliarti immerso nella tranquillità della campagna, con i profumi autentici della Sicilia rurale, pur restando a un passo dal cuore di un paese pittoresco. Questa splendida casa indipendente a Saponara (Messina), sviluppata su tre livelli, non è solo una proprietà, è l'opportunità di abbracciare uno stile di vita sereno. Con i suoi spazi generosi e le rifiniture curate, è perfetta sia come residenza familiare che come esclusivo rifugio vacanziero circondato da una bellezza paesaggistica impareggiabile. Un'abitazione, di recente costruzione, che racconta comfort e convivialità. Dopo aver varcato l'ingresso indipendente al piano terra, una comoda scala ti conduce al piano primo, il vero cuore pulsante della casa, dedicato interamente al comfort quotidiano. Qui ti accoglie un soggiorno ampio e luminoso, il luogo ideale per rilassarsi, da cui parte una scala interna che collega direttamente al piano superiore. La vita di famiglia si concentra nella cucina abitabile: spaziosa e conviviale, è dotata di climatizzatore, un pratico angolo dispensa e si affaccia su un comodo balcone, perfetto per godersi il clima siciliano. La zona notte è progettata per il riposo: la camera matrimoniale, confortevole e accogliente, vanta un balcone che affaccia direttamente sulla piazza, assicurando risvegli vivaci. Una cameretta versatile, completa di climatizzatore e balcone, si adatta perfettamente alle esigenze, che si tratti di accogliere i bambini, gli ospiti o di fungere da pratico studio. A completare il piano, un bagno grande e ben curato. Il bonus: Atmosfera e spazio polivalente. Salendo al piano secondo, scoprirai un vero e proprio valore aggiunto: un suggestivo vano sottotetto. Questo spazio è pronto a trasformarsi nel tuo luogo preferito per l'intrattenimento, grazie alla presenza di un affascinante caminetto. La sua funzionalità è amplificata dalla presenza di un'ulteriore cameretta e un secondo bagno, rendendolo ideale come area hobby, sala giochi o piccola dependance per gli ospiti. Vivere l'autenticità a saponara Saponara è un invito alla tranquillità, offrendoti panorami incantevoli e la genuinità della tradizione siciliana. La casa è pronta per essere abitata, garantendoti un contesto di assoluta quiete. Non perdere questa opportunità unica di vivere la serenità con spazi interni ed esterni di alta qualità. Sei pronto a fare tuo questo angolo di Sicilia? Contattaci oggi stesso per maggiori dettagli e per organizzare una visita!
 
collaborazioni: condiviso
Città/Provincia: Saponara (MESSINA)
Indirizzo: Via Generosa 3
m.q.: 171 Vani:8
Classe energ. : G
Prezzo: 169,000 €
 

TRINGALICASE S.r.l.s. tringalicase@hotmail.it PI 03435370832 tel./Fax 090675355 Viale San Martino 116 98123 Messina