TringaliCase Immobiliare
   Scheda Immobile cod:AS01
 
Offerta: Affitto
 
telefono agenzia: 090675355

 

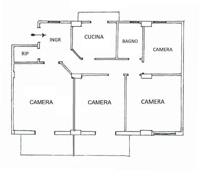
Camere arredate zona Policlinico Universitario "G. Martino" - Disponibili quattro camere per studentesse in un bellissimo appartamento posto al quarto piano con ascensore di un elegante stabile, dotato di ascensore. Tutte le camere, ben disimpegnate, presentano mobili nuovi e dispongono di climatizzatori, tv-led, wifi e luci di emergenza, per garantire il massimo comfort. La cucina č completa di elettrodomestici, compresa la lavatrice, il bagno č moderno e funzionale. L'abitazione si trova a circa 500 metri dal Policlinico Universitario, posizione strategica e ottimamente servita da attivitā commerciali di ogni genere, da fermate dei mezzi di trasporto pubblico e privato, che permettono di raggiungere facilmente il centro cittā e le altre facoltā. In zona sono inoltre presenti svincoli autostradali, uffici postali, farmacie, tabacchi, banche, palestre e distributori. Non perdere l'occasione di vivere in un ambiente confortevole e ben posizionato! CANONI DI LOCAZIONE: Camera piccola euro 250,00 - Camera media euro 300,00 - Camera grande euro 350,00
 
collaborazioni: non condiviso
Città/Provincia: Messina (MESSINA)
Indirizzo: Strada Statale 114 (Policlinico Universitario)
m.q.: 95 Vani:4
Classe energ. : E
Prezzo: 300 €
 

TRINGALICASE S.r.l.s. tringalicase@hotmail.it PI 03435370832 tel./Fax 090675355 Viale San Martino 116 98123 Messina